façade revalorisée
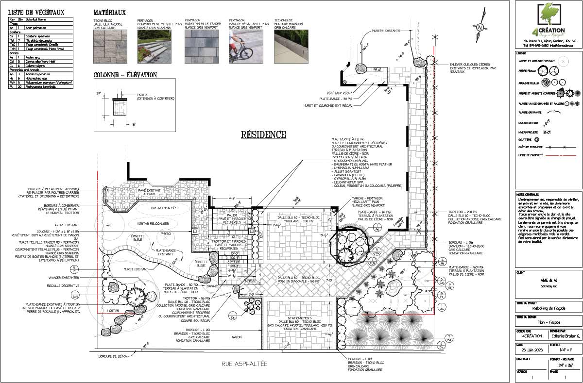
Les propriétaires souhaitaient actualiser le style champêtre de leur façade tout en conservant certains éléments de l’aménagement existant.
Notre proposition : un concept modernisé intégrant des lignes épurées et rectilignes. Une partie du muret et du pavé a été réutilisée, permettant de réduire les coûts tout en préservant le charme de l'aménagement initial.
Pour maximiser l’impact, les grands végétaux situés devant l’entrée ont été retirés, libérant ainsi l’espace et offrant une entrée plus ouverte et accueillante. Ce relooking combine harmonieusement fonctionnalité, esthétique contemporaine et respect de l’existant.



