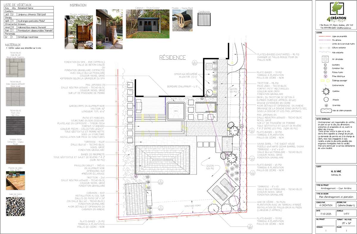
Petit refuge urbain
Ce projet de réaménagement transforme une petite cour citadine en un véritable havre de détente, conçu pour profiter pleinement de la vie en extérieur tout au long de l’année. Les propriétaires souhaitaient un espace offrant à la fois fraîcheur et bien-être : une douche extérieure et un spa quatre saisons permettent de se rafraîchir ou de se relaxer à tout moment, tandis qu’un sauna complète l’expérience de bien-être. Un espace couvert permet de manger et se détendre en toute convivialité, à l’abri des moustiques, prolongeant ainsi le temps passé dehors. La cour intègre également un espace bain de soleil et un nouveau cabanon, le tout judicieusement agencé dans un espace restreint pour maximiser confort, fonctionnalité et esthétisme.



