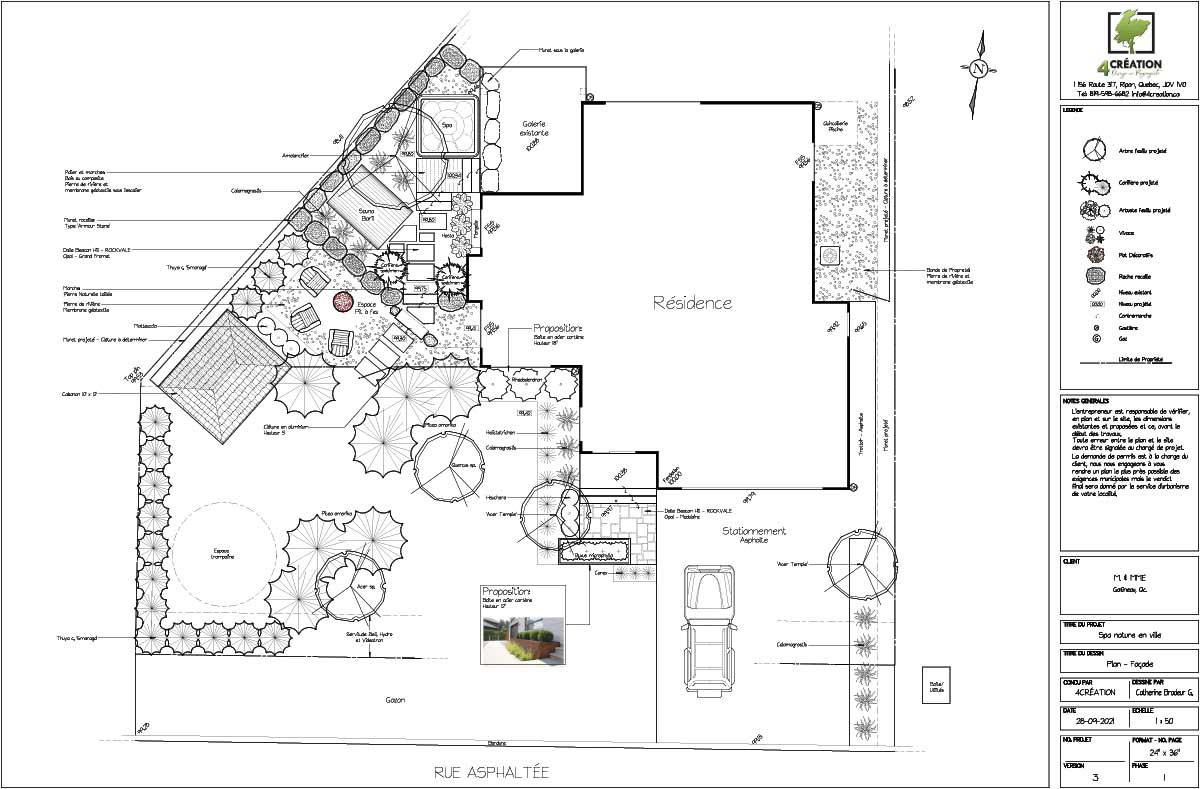
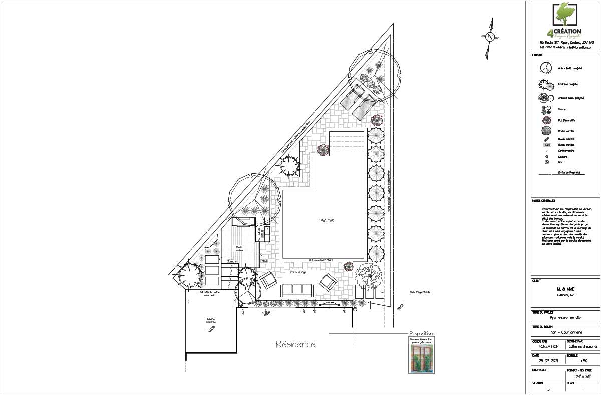
Spa nature en ville
Un défi stimulant : aménager un espace de style spa nature dans une cour urbaine.
Les propriétaires souhaitaient intégrer un spa, une piscine, un sauna en forme de baril, un cabanon, un espace lounge, une zone repas, un espace foyer, tout en préservant l'intimité, le tout sur un terrain de forme triangulaire, limitant l'espace disponible.
Pour créer de l'intimité autour de la piscine, des conifères ont été stratégiquement positionnés, tandis que les grands arbres en cour latérale créeront une atmosphère naturelle tout en formant une barrière visuelle, offrant ainsi une séparation avec la rue. De plus, nous avons joué avec les niveaux de terrain pour recréer un effet montagneux, renforçant l'intégration harmonieuse de l'espace.
Les clients sont ravis et peuvent désormais profiter pleinement de leur cour, chaque mètre carré ayant été optimisé pour maximiser l’usage de l’espace. L’installation du sauna reste la dernière étape… à suivre !



